Are you interested in inspecting this property?
Get in touch to request an inspection.
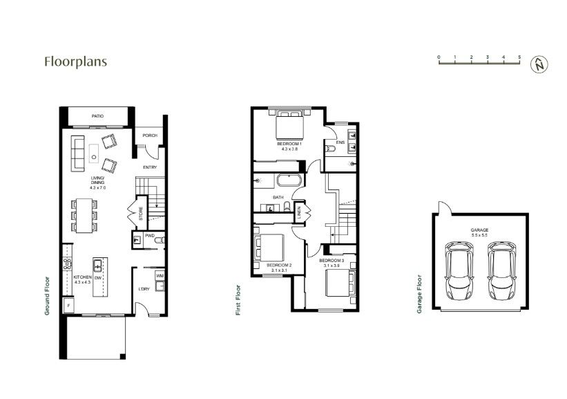
Home for Sale in Oran Park
Brand New Modern Luxury Terrace Home! Ready to Move in… Q3 2026
- 3 Beds
- 2 Baths
- 2 Cars
With 3 bedrooms, main with ensuite, quality bathroom and laundry, open plan kitchen and spacious combined living and dining opening to an undercover alfresco area and a low maintenance yard. With double garage and internal access, internal laundry, and lots of extras and full of high quality fittings and finishes, this brand new home is the full package for high quality and low maintenance modern lifestyle.
- Tiled living areas, carpeted bedrooms
- Caesarstone benchtops throughout
- Built in wardrobes in each bedroom
- Stainless steel kitchen appliances
- Ducted Airconditioning, dishwasher
- Security alarm, high ceilings
- Low maintenance and easy care yard
- Double garage with internal access
Disclaimer: All information contained herein is gathered from sources we believe to be reliable. However, we cannot guarantee its accuracy and interested persons should rely on their own enquiries.
All images used are for illustrative purposes, always review contract of sale and inclusions for full details.
197m²
230.5m² / 0.06 acres
2 garage spaces
3
2
Agents
- Loading...
Loan Market
Loan Market mortgage brokers aren’t owned by a bank, they work for you. With access to over 60 lenders they’ll work with you to find a competitive loan to suit your needs.
